York Chocolate Story brief was to develop options for a new chocolate kitchen area including new tables and an Advertising & Marketing AV backdrop. To start with there was a need for a major decluttering, as during the live demonisation of chocolate making, equipment was in convenient places for the staff but were out in the open for guests to see and have to navigate around. 
With this area decluttered, we then approached a solution for the front of the bar to tie in with the experience. This would reconnect the demo areas with the chocolate making activity. This area needs to be much more of a design statement. The unitary could be more visually suggestive of activity the guest will be taking part in. It will draw people into the space and work for the use of presentation in the form of projected media and a hands on chocolate making workshop.
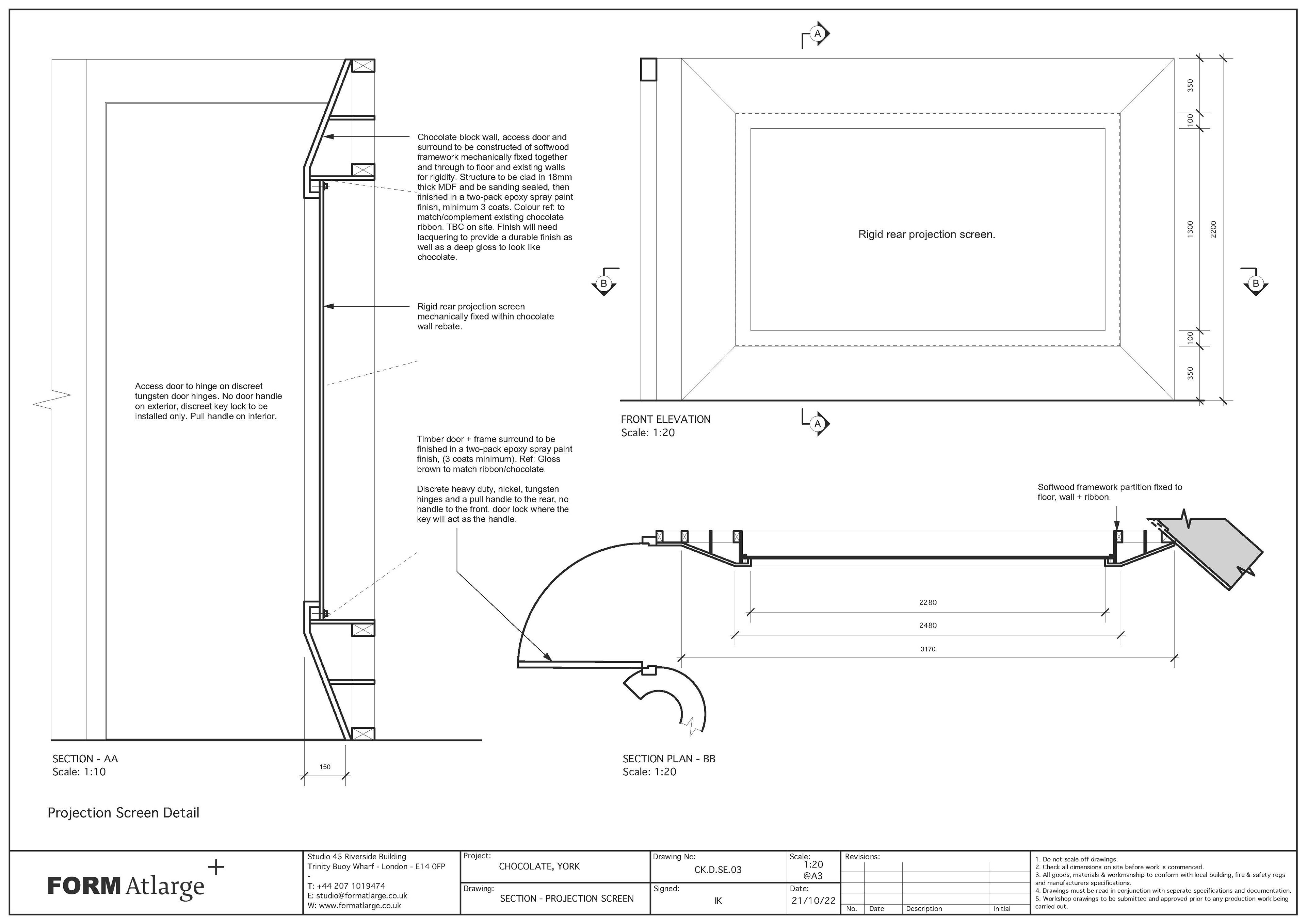
Our approach was 3 chocolate making tables that take on the form of a dark chocolate being decorated with white chocolate pouring over it from a ceiling feature. Creating a dynamic and active feel to the space. The ceiling feature houses the down lights to the work surface and warm LED strips for mood lighting on the ceiling. The Media back drop takes on the form of a chocolate bar with rear AV projection screen embedded for the client to be flexible with media content and personalised events. To tie this all in to the existing demonstration kitchen we opted for a string curtain partition with warm white strip light in the ceiling to cascade down. This helps reduce the noise from when two simultaneous demos are happening but doesn't completely cut off the space from each other.
Back to Top